PAT Hirschmann A2B Length Cable
-
100% ORIGINAL AND QUALITY
-
24 MONTHS GUARANTEE
-
1-4 DAYS DELIVERY
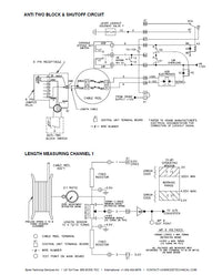
Length sensor cable for use on standard PAT and Hirschmann length LWG and LG cable reels. Also known as A2B cable, Length Cable, or single core cable. This cable comes standard on many Grove, National, Terex, and Manitex cable reels.
The standard length is 139 feet, however other lengths are available upon request. Please contact us if you are uncertain of your length requirement.
PAT REEL A2B LENGTH CABLE REPLACEMENT PROCEDURE*
- Cut old cable at the cable drum
- Disconnect the damaged length cable from junction box at the boom tip.
- Open PAT cable reel cover and disconnect wiring from connection block
- Pull 7 conductor cable out of strain relief
- Remove the PAT Hirschmann cable reel from its mounting brackets.
- Remove the damaged length cable from the slip-ring connection. Refer to drawing below.
- On the back side of the cable reel, open the strain relief attached to the axle in the center of the drum. Pull existing length cable out of the cable reel.
- Pull new A2B length cable through the hole, pipe and strain relief and push it through the axle of the reeling drum. Tighten strain relief to ensure sealing.
- Reconnect the length cable to the slip-ring. Refer to drawing below.
- Remount PAT Hirschmann cable reel to the boom.
- Turn reeling drum clockwise to spool the new A2B length cable neatly onto the drum.
- Set preload on cable reel by turning the drum counter-clockwise 5 to 8 turns.
- Wrap the new A2B length cable around the boom tip anchor pin (4 or 5 wraps) and secure with tie wraps. Leave enough length cable to connect into the boom tip junction box.
- Connect the length cable inside the boom tip junction box.
- Reset length potentiometer in length angle transducer (screw is located in center of white gear);
- With the boom fully retracted, turn potentiometer carefully counter-clockwise until it stops.
- Recheck length and angle display.

*From PAT Hirschmann DS350 Manual. Please utilize a certified technician to complete this installation.

Length sensor cable for use on standard PAT and Hirschmann length LWG and LG cable reels. Also known as A2B cable, Length Cable, or single core cable. This cable comes standard on many Grove, National, Terex, and Manitex cable reels.
The standard length is 139 feet, however other lengths are available upon request. Please contact us if you are uncertain of your length requirement.
PAT REEL A2B LENGTH CABLE REPLACEMENT PROCEDURE*
- Cut old cable at the cable drum
- Disconnect the damaged length cable from junction box at the boom tip.
- Open PAT cable reel cover and disconnect wiring from connection block
- Pull 7 conductor cable out of strain relief
- Remove the PAT Hirschmann cable reel from its mounting brackets.
- Remove the damaged length cable from the slip-ring connection. Refer to drawing below.
- On the back side of the cable reel, open the strain relief attached to the axle in the center of the drum. Pull existing length cable out of the cable reel.
- Pull new A2B length cable through the hole, pipe and strain relief and push it through the axle of the reeling drum. Tighten strain relief to ensure sealing.
- Reconnect the length cable to the slip-ring. Refer to drawing below.
- Remount PAT Hirschmann cable reel to the boom.
- Turn reeling drum clockwise to spool the new A2B length cable neatly onto the drum.
- Set preload on cable reel by turning the drum counter-clockwise 5 to 8 turns.
- Wrap the new A2B length cable around the boom tip anchor pin (4 or 5 wraps) and secure with tie wraps. Leave enough length cable to connect into the boom tip junction box.
- Connect the length cable inside the boom tip junction box.
- Reset length potentiometer in length angle transducer (screw is located in center of white gear);
- With the boom fully retracted, turn potentiometer carefully counter-clockwise until it stops.
- Recheck length and angle display.

*From PAT Hirschmann DS350 Manual. Please utilize a certified technician to complete this installation.

Have a Question?
The BTS Parts Team is always available to answer any questions you may have. Please feel free to leave a message and we will reply within 24 hours.
4737 North Ocean Drive
Suite 206
Fort Lauderdale FL 33308







